Продажа дома, деревня Бурцево

18 500 000
Вчера, 13:13
  • Вчера, 13:13
1 / 28
Адрес Богородский муниципальный округ, деревня Бурцево, Физкультурная, 189
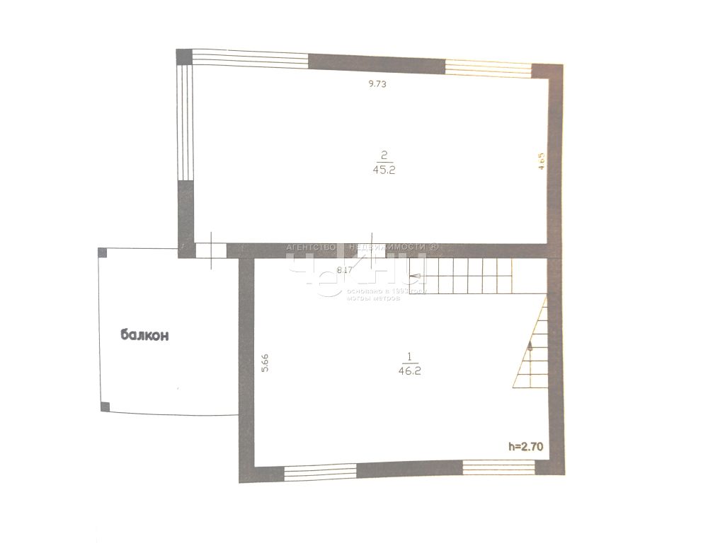
Площадь 194 кв.м.
Площадь земли 17 сот.
Строение 2-этажный Дом
Материал стен Керамзитоблок
Крыша Металлочерепица
Фундамент ленточный
Вода Центральное в/с
Канализация Автономная
Отопление Автономное (котельная)

Жить в тишине — и быть при этом рядом со всем необходимым.  Идеальное место для тех, кто ценит свежий воздух, тишину и природу

Представляем вашему вниманию современный загородный дом для круглогодичного проживания, расположенный в одном из самых живописных мест Богородского направления в пос. Бурцево, всего в 30 километрах от Нижнего Новгорода (удобный доступ как от Щербинок, так и от Автозавода)

Коттеджный посёлок закрытого типа, под круглосуточной охраной и видеонаблюдением по периметру

Дом был введён в эксплуатацию в 2016 году и отличается удачным угловым расположением с потрясающим видом на озеро. Особую привлекательность месту придаёт минимальное количество соседей и окружающая природная красота, создающая идеальные условия для круглогодичного проживания и отдыха на лоне природы.

Особое преимущество:           дом — угловой, рядом с озером!  Ни шума, ни суеты. Максимум приватности, простора и уединения. Соседей почти не видно — зато видно природу

Коммуникации и удобства:

  • Все центральные коммуникации: газ, электричество, водоснабжение и канализация
  • Частичный ремонт, можно жить

Планировка дома:

  • Два жилых этажа с современной функциональной планировкой
  • Терраса на втором этаже с выходом из спальни
  • Полноценный цокольный этаж
  • Панорамный вид на озеро со второго этажа

Характеристики участка:  

  • Рельеф участка: ровный, небольшой склон. Форма: прямоугольная.

Прочная конструкция и качественные материалы

  • Прочность конструкции:           дом рассчитан на долгие годы эксплуатации
  • При строительстве использованы только  высококачественные материалы, гарантирующие долговечность и надежность конструкции
  • Надежный фундамент
  • Стены из керамзитобетона
  • Металлочерепичная кровля

Этот дом идеально подойдёт для тех, кто ценит комфортное проживание на природе, высокий уровень безопасности, развитую инфраструктуру и экологически чистую среду. Здесь вы найдёте всё необходимое для счастливой и спокойной жизни вдали от городской суеты, но при этом сохраните удобную транспортную доступность к мегаполису

 

Юридическая чистота:

* Возможность проведения сделки любым удобным способом

* Быстрый выход на сделку

* Не альтернат

* 1 взрослый собственник

За подробной информацией и организацией просмотра обращайтесь по телефону. Готовы ответить на все вопросы и организовать показ в удобное для Вас время.

Кошик Татьяна Александровна
007dialog@mail.ru
Агентство недвижимости: " AH " Чекни "
г.Н.Новгород, ул.Семашко, д.33
chekni@sandy.ru
Все предложения этого агентства