Продажа студии 20.3 м2, улица Бориса Видяева 20, Нижний Новгород

3 900 000
192 118 ₽ / кв.м.
01 ноября 2025
1 / 11
Адрес Нижний Новгород, Автозаводский район, ул. Бориса Видяева, 20
Количество комнат 1 – комнатная
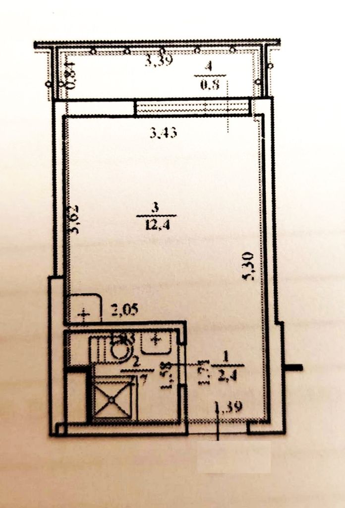
Площадь (кв.м.) Общая: 20.3 Жилая: 12.4 Кухня: 2 20.3 / 12.4 / 2
Этаж 2 из 10
Дом Панельный
Санузел совмещенный
Планировка студия
Состояние отличное
Отопление Центральное
Балкон / лоджия 1 балкон
Грузовой лифт есть

Продаётся квартира-студия в новом ЖК «Торпедо», ул. Бориса Видяева д. 20, площадью 17,5 кв. м., балкон 2,8 кв. м, на 2 этаже 10-ти этажного дома.
В квартире остается кухонный гарнитур, шкаф и тумба в прихожей, жалюзи.
Установлены счетчики на воду, 2-х тарифный счетчик на электричество (день, ночь). Низкие коммунальные платежи.
Придомовая территория оборудована спортивными комплексами и детскими площадками. Рядом остановка общественного транспорта, ТЦ «Торпедо», магазины первой необходимости, аптеки. Транспорт автобусы № 87, 65, электробусы № 4, 12, 14.
Подходит для собственного проживания или для сдачи в найм.

Галанин Максим Владимирович
Агентство недвижимости: ООО АН Терминал
г.Нижний Новгород, ул. Героя Шнитникова, д.1, помещ. П002
Все предложения этого агентства